Neues City Wohnen im grünen Garten - Ingelheimer Gärten
Immobilien ID: M-154-22
Beschreibung
Städtisches Wohnen im Grünen ist das Gesamtkonzept der Ingelheimer Gärten. Die aufwendig gestaltete Grünanlage mit Parkcharakter, ihre romantisch verträumten Wege, die durch das Ensemble führen, geben ein beruhigendes Wohlgefühl. Die moderne Bauart ist feinste Niedrigbauweise mit wertigen Materialien - einfach zeitlos schön. Die Ausstattung und Produkte von namhaften als auch qualitativen Herstellern machen das Wohnen zur Freude.
Ausstattung
Ausstattungsdetails wie folgt:
Fliesen von Villeroy&Boch ++ Sanitärarmaturen von Hansgrohe ++ Sanitärporzellan von KERAMAG ++ Elektrische Rollläden ++ Moderne Einbauküche ++ Glasfaserverkabelung ++ Video-Gegensprechanlage ++ Großer Balkon ++ Helle Treppenhäuser ++ Fahrstuhl von KG bis OG ++ Fahrradabstellraum ++ Eigener Kellerraum ++ Heller Tiefgaragenstellplatz +++ u.v.m.
Lage
Bessungen West-Verlegerviertel - der Westen Darmstadts wird vom Verlegerviertel geprägt. Der Ingelheimer Garten bildet zusammen mit dem Akazienpark und der Albert-Schweizer-Anlage die Grüne Lunge des Viertels. Über die B3 gelangen Sie schnell in die City. Straßenbahn und Busse sind in der Nähe. Auch mit dem Fahrrad oder zu Fuß erreicht man, durch die Albert-Schweizer-Anlage, schnell und bequem die Innenstadt. Die City wartet mit vielen Cafés und Einkaufsmöglichkeiten auf Ihre Besucher. Große internationale Firmen, Schulen und Universitäten sind in der Wissenschaftsstadt Darmstadt zu Hause. Auch die Autobahnen und der Hauptbahnhof sind in wenigen Minuten erreichbar.
Sonstige Angaben
SERO IMMOBILIEN GmbH wurde mit der Vermarktung dieser Immobilie exklusiv vom Eigentümer beauftragt.
Alle Angaben stammen vom Eigentümer bzw. Dritten. Diese wurden von uns sorgfältig geprüft und nach bestem Wissen und Gewissen bearbeitet. Alle Angaben sind somit ohne Gewähr auf Vollständigkeit und Richtigkeit.
Bei Rückfragen stehen wir Ihnen jederzeit zur Verfügung. Rufen Sie uns gerne für einen Besichtigungstermin an.
Daten
| Immobilien ID: | M-154-22 |
| Standort: | 64295 Darmstadt |
| Immobilientyp: | Wohnung |
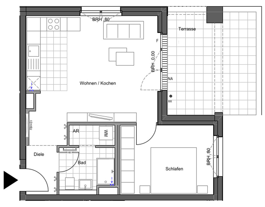
| Wohnfläche: | ca. 62 m² |
| Nutzfläche: | ca. 5 m² |
| Stellplätze: | 1x Tiefgarage (85 €/Monat) |
| Zimmeranzahl: | 2 |
| Schlafzimmer: | 1 |
| Badezimmer: | 1 |
| Befeuerung: | Fernwärme |
| Baujahr: | 2022 |
| Nebenkosten: | 220,00 EUR |
| Kaution: | 3.090,00 EUR |
| Kaltmiete: | 1.030,00 EUR |
| Warmmiete: | 1.335,00 EUR |
